• 4
  • 1
  • 2
  • N/A

Bienvenue au 1057 Rue du Parcours à Saint-Jérôme, dans le quartier recherché de Bellefeuille. Nichée sur plus de 30 000 pieds carrés de terrain et bien retraitée de la rue, cette spacieuse résidence de style moderne campagne allie confort, fonctionnalité et espace. Avec quatre chambres généreuses, deux salles familiales, des plafonds de neuf pieds et de nombreux rangements, cette propriété offre un mode de vie pratique et harmonieux.

Détails de la propriété

Type de bâtimentDétaché (Isolé)
Superficie habitableN/A
Dimensions du terrain162x230 P
Superficie du terrain32880 PC
Dimensions du bâtiment50x38 P
ZonageRésidentiel
Année de construction2021
Reprise de financeNon

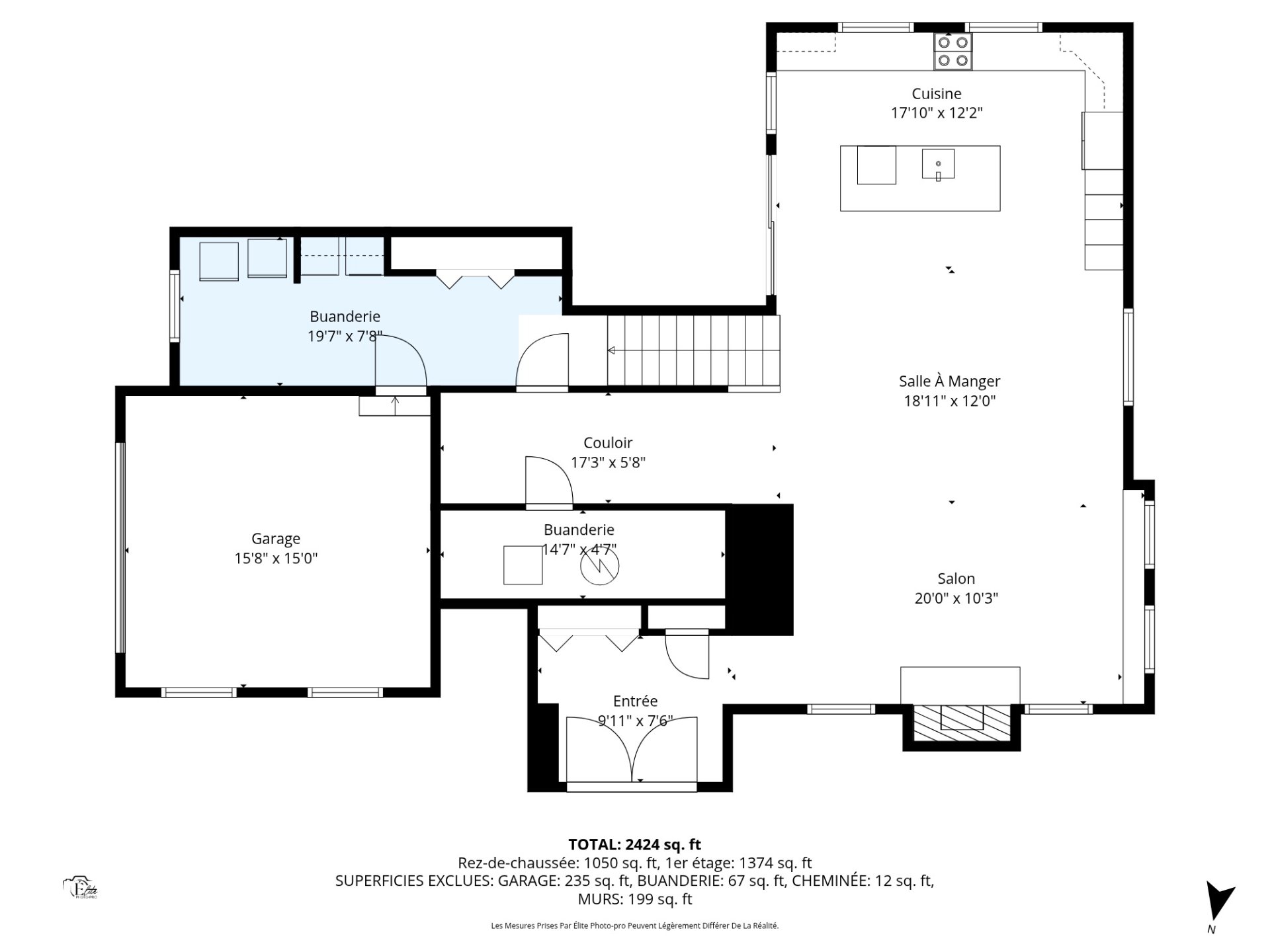
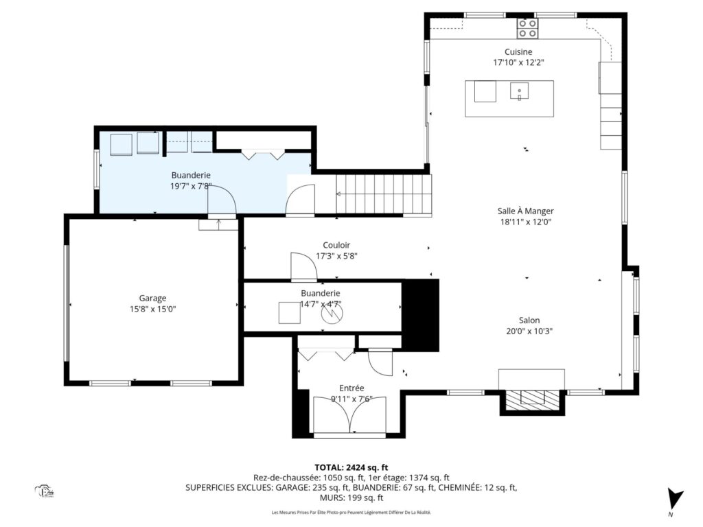
Description des pièces

NiveauPiècesPlanchersDétails
1er niveau/RDCHall d'entrée/VestibuleCéramique9.11x7.6 P
1er niveau/RDCCuisineBois17.10x12.2 P
1er niveau/RDCSalle à mangerBois18.1x12.0 P
1er niveau/RDCSalonBois12.0x10.3 P
1er niveau/RDCSalle de lavageCéramique19.7x7.8 P
+ Afficher plus
1er niveau/RDCAutreBois17.3x5.8 P
1er niveau/RDCSalle de lavageCéramique14.7x4.7 P
2ième étageChambre à coucher principaleBois13.4x14.5 P
2ième étagePenderie (Walk-in)Bois4.2x7.0 P
2ième étagePenderie (Walk-in)Bois4.2x7.0 P
2ième étageSalle de bainsCéramique8.3x11.10 P
2ième étageSalle de lavageCéramique5.0x8.8 P
2ième étageChambre à coucherBois9.5x10.2 P
2ième étageChambre à coucherBois18.5x11.1 P
2ième étageChambre à coucherBois14.5x11.9 P
2ième étageSalle de bainsCéramique9.6x9.1 P

Caractéristiques

AlléeNon Pavée
Mode de chauffageAir soufflé
Approvisionnement en eauPuits artésien
Énergie pour le chauffageÉlectricité
FondationBéton coulé
+ Afficher plus
Foyers-poêlesAutre
combustion lente
Foyers-poêlesFoyer au bois
GarageChauffé
GarageIntégré
RevêtementsAluminium
RevêtementsBrique
Salle de bains/salle d'eauAttenante à la chambre principale
Salle de bains/salle d'eauDouche indépendante
Sous-solAucun sous-sol
Stationnement (total)Extérieur
Stationnement (total)Au garage
Système d'égoutsBiofiltre
Système d'égoutsChamp d'épuration
ParticularitésBoisé
Type de fenêtreGuillotine
ToitureBardeaux d'asphalte
ZonageRésidentiel
Système d'égoutsAutre
ECOFLO

Addenda

Découvrez le 1057 Rue du Parcours, une demeure conçue avec soin dans le secteur prisé de Bellefeuille à Saint-Jérôme.
Établie sur un terrain de plus de 30 000 pieds carrés et positionnée à l’écart de la rue, cette propriété propose intimité, espace et un cadre de vie paisible.
Le style moderne campagnard de la maison combine charme, fonctionnalité et convivialité.
À l’intérieur, les plafonds de neuf pieds renforcent la luminosité et la sensation d’espace, tandis que le concept à aire ouverte favorise une circulation naturelle entre le salon, la salle à manger et la cuisine.
La chaleureuse cheminée au bois ajoute un point focal accueillant dans la pièce principale, idéale pour les moments en famille ou entre amis.
L’aménagement a été pensé pour la vie quotidienne.
Au deuxième étage, quatre chambres de bonne dimension offrent confort et tranquillité, dont une suite principale privative, ainsi qu’une salle de bain à partager pour les autres chambres.
Une seconde salle familiale à l’étage offre une aire polyvalente pouvant servir de salle de jeux, de détente ou de télé.
Parmi les aspects pratiques de cette maison, on trouve deux salles de lavage séparées, un grand espace de rangement et un vestibule fonctionnel conçu pour garder les vêtements et les bottes organisés, un atout particulièrement apprécié durant les mois d’hiver.
Le garage d’une superficie équivalente à un garage simple et demi offre une capacité généreuse pour véhicules, outils et rangement.
De plus, une génératrice est incluse pour assurer le confort et la sécurité en toutes circonstances.
L’espace extérieur constitue un véritable avantage, avec une grande cour où les enfants peuvent jouer en toute liberté ou où il est possible d’aménager des aires de détente ou de jardinage.
Situé à Bellefeuille, ce secteur offre une ambiance de quartier conviviale avec un accès facile aux écoles, aux parcs, aux commerces et aux transports.
Les sentiers pédestres et les espaces verts des environs invitent à profiter de la nature et d’un style de vie équilibré.
Cette propriété se distingue par sa conception réfléchie, ses espaces polyvalents et sa qualité de vie.
Une occasion rare qui répond à la fois aux besoins d’une vie familiale active et à l’envie de tranquillité.

Taxes et Frais

Taxes municipales :
Taxes municipales année :
Taxes Scolaires​ :
Taxes Scolaires année :
Frais de copropriété :
Frais de copropriété année :
Frais commun/Loyer de base :

Coût d''énergie

Coût d'énergie :

Calculateurs

$
%
ans
%
$
$